Typically, builders install a batten in the centre of each room. In the case of bedrooms, this would be ok, however in a larger room like a kitchen or living area, this is not always sufficient.
Current lighting trends lean towards the installation of down-lights, which are not compatible with the “single light installed in the centre of the room” pattern of light fittings specified as standard by your builder.
Wall lights are not compatible with the builder-standard pattern either. It is equally important, if not more important, to decide whether you wish to use this style of lighting, because the wall will never look the same once it has been patched.
Pendants, oyster and fluorescent lights, however, are compatible with the builder-standard pattern and should not require you to patch old holes in your ceiling.
The last thing we want to do in our new home is patch the ceilings and walls. This placed lighting design at the top of “things to do before Pre-Start” list.
When it came to lighting design, I was definitely in the dark.
I took the time to visit a couple of local lighting stores looking for advice and recommendations on where to position each light and what type of light to use. The advice I received was very good, but the designs I found lacking.
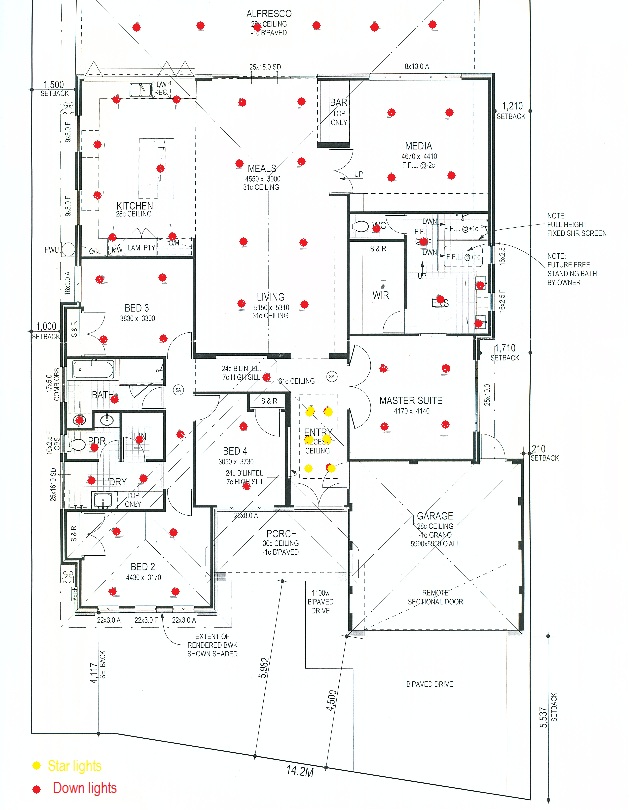
![]() |
| Generic Lighting Design |
Tip: Before you start on your lighting design, make sure you determine the primary function for each room and the location of your furniture. For example, if you are converting one of your bedrooms into a study, you may require focused task lighting, or put a decorative pendant above your dining room table.
What I did not like the generic lighting designs I received, was the "one size fits all" feel about it. Using a template to mark lighting positions is fair enough in square rooms, but for passageways and rooms that require task lighting (e.g. kitchen), I felt this approach was lacking.
On a whim, I decided to visit HS Reflections. If you want a lighting design done by HS Reflections, you will generally need to book a consultation in advance (they are open late on Thursday). The consultation takes approximately one hour, significantly longer than those I had done previously.
The consultation has two distinct stages. The first stage is design and requirements. Here you will sit with your consultant and go through each room individually to determine its primary function and style.
The first stage took approximately thirty minutes to complete. We started at the front of the house, worked our way inside, and finished at the alfresco. I really appreciated all the extra information and advice that Paley offered, for example:
- making a note to see whether the builder is able to relocate or reposition some of our downpipes to make room for the wall mounted exterior lights;
- combining exhaust fans and lights into a single unit, so that the WC and Powder Room ceilings would be neater;
- grouping down-lights in the alfresco area to create individual areas for BBQ/cooking, eating, and relaxing; and,
- choosing the correct colour of light to suit the primary function of the room. For example, white light in the study/gym to reduce eyestrain, whilst using traditional yellow light in the bedrooms to promote relaxation.
Lighting design produced by HS Reflections |
The second stage is choosing fittings from the showroom so that the consultant is able to provide an accurate quotation. The consultant guides you through the showroom, offering suggestions and providing information about the products as you go. What I found unique about this show room was that you are able to turn on/off every light. If you have visited the show room before, or have a good understanding of the style of fittings you wish to purchase, this stage can be over in fifteen-twenty minutes.
Depending on the size of the job and/or how busy they are, it can take about three days to receive your quote. Unlike other quotations, HS Reflections itemises everything by room. I found this extremely useful, especially if you have to add, remove or change something – due to the way our picture recesses are constructed, we had to remove the starlights we had planned.
For a free service, I was amazed at the level of detail and the time spent creating the design for our home. I definitely recommend visiting HS Reflections for a lighting consultation. You will learn a lot and their prices are very reasonable.
A funny thing I will mention is the comment from our Pre-Start consultant when I pulled out the lighting design, "Oh, you've been to that place." Indeed, I have.
